
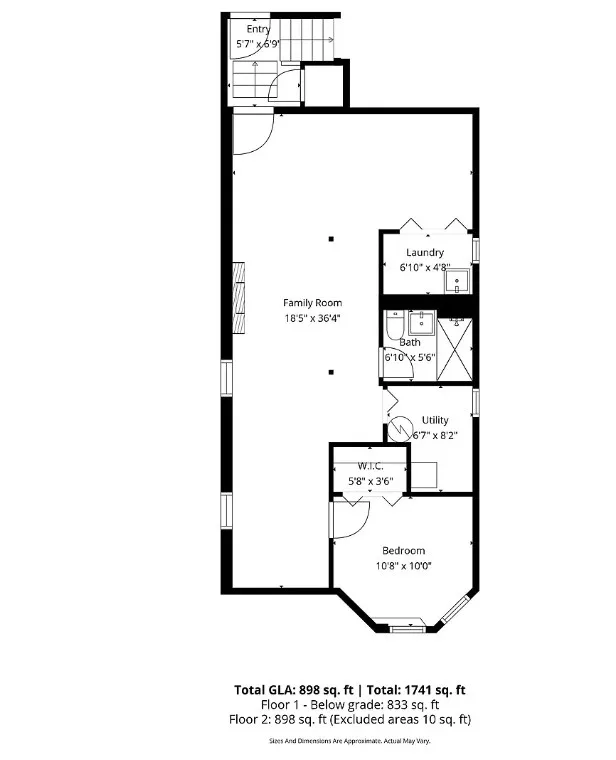
This is a pretty house! The exterior is unique! The house was built in 1918. It is located in Berwyn, Illinois. The house features a covered front porch, baseboards, unique fireplace, crown moulding, updated kitchen, updated bathrooms, finished basement and a fenced backyard. Four bedrooms, two bathrooms and 1,731 square feet. $375,000
Contact Tatiana Hernandez with Keller Williams Premier Properties: 312-401-3655
From the Zillow listing:
Welcome to this beautifully updated and meticulously maintained 3+1 bedroom, 2 bathroom home in the highly sought-after North Berwyn neighborhood! Thoughtfully remodeled from top to bottom, this home blends modern design with timeless charm. Step inside to find gleaming hardwood floors, a bright open layout, and a custom electric fireplace that sets a warm, inviting tone. The heart of the home is the updated kitchen, featuring quartz countertops, custom cabinetry, and new stainless steel appliances. The home offers spacious bedrooms, newer WINDOWS (2020), and an updated HVAC system (2025) for comfort and efficiency. The fully finished walkout basement adds valuable living space, with a custom electric fireplace -ideal for a family room, or entertainment area, an additional room that could be used as a guest bedroom or home office, and a full bathroom, this space has it all. Outside, enjoy your private fenced backyard with a new CONCRETE PATIO (2025), and a 1 car garage with a new DOOR (2025), SIDING (2025) and ROOF (2025). Located blocks from Prairie Elementary, Cermak Rd, I-290 and the Blue Line, the Berwyn Metra station and more. This North Berwyn gem combines convenience and quality you do not want to miss!
Let them know you saw it on Old House Life!


























