
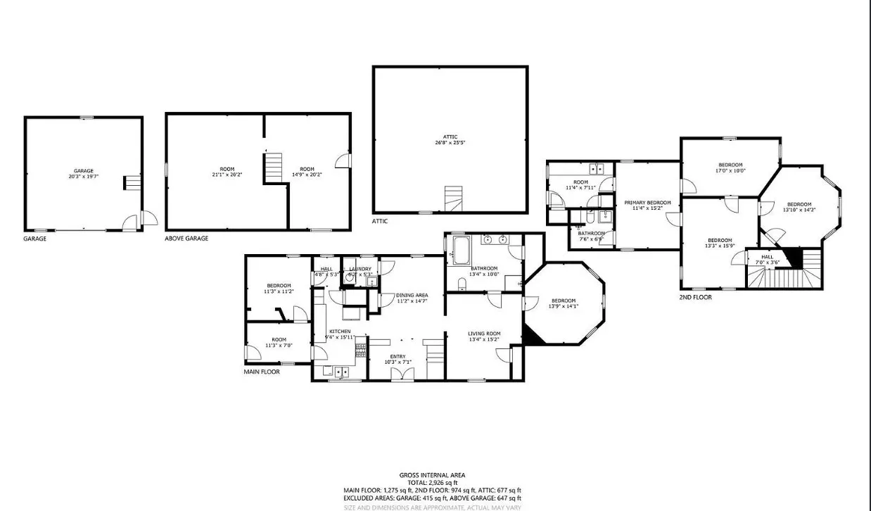
I love how these Maine houses have additions that look like totally different houses. Even the barn is attached for those cold winter days. The house was built in 1900. It is located on 12 acres in Athens, Maine. The house features wood floors, baseboards, bead board, wainscoting and updated bathrooms. There is an attached barn and a fire pit area. Five bedrooms, two bathrooms and 2,249 square feet. $325,000 New price: $315,000
Contact Real Broker
From the Zillow listing:
Have you been dreaming of a property where your horses can thrive or a timeless home filled with charm and modern comforts? This historic Athens treasure might be exactly what you have been waiting for. Step onto the welcoming side porch, a perfect spot to sip your morning coffee while overlooking the scenic yard. Inside, a spacious entry leads into the dining room, an ideal gathering place for family meals and holidays. To the left is the large kitchen with plenty of cabinets and a handy pantry with built-ins for extra storage. Off the kitchen, you will find a mudroom for all of your riding gear with direct access to the garage. To the right of the dining room is a bright, open living room filled with sunshine from a large picture window. Original hardwood floors flow throughout the home, adding warmth and character. The first floor offers two comfortable bedrooms, a large bathroom with separate tub and shower, and a dedicated laundry area. Upstairs, you will discover even more living space with four large rooms, a kitchen area, and another full bathroom. This level could be transformed into an apartment, in-law suite, or anything that fits your vision. A spacious attic above and additional space over the garage provide even more potential. Outdoors is where this property truly shines. A classic barn is ready for your animals with a fenced area and open fields. With 12 acres of land, including frontage on Wesserunsett Stream, your horses will have room to roam and explore. Direct access to ITS snowmobile and ATV trails extends your riding adventures beyond the property. A newer on demand generator adds peace of mind. Whether you are looking to raise a family, create a home for your animals, add an in-law apartment, or even explore the idea of a wedding venue, the possibilities here are endless. All of this is tucked away in a quiet private setting, yet only 15 minutes to Skowhegan and 35 minutes to Waterville. Schedule your showing today!
Let them know you saw it on Old House Life!





























































